WHAT'S IN FOCUS

MARCS INSTITUTE’S NEW HOME

MARCS INSTITUTE’S NEW HOME

Check out the Westmead Innovation Quarter (IQ) that will house MARCS Institute, THRI and TeACH.

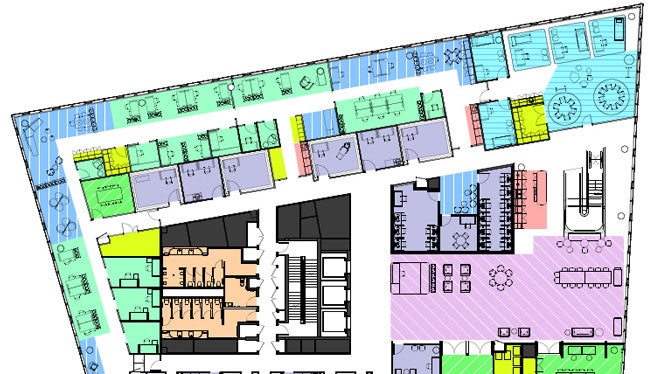
Floor Plans

Floor Plans

View the floor plans for each level.

MARCS Westmead Innovation Quarter (WIQ)

Health & Research Precinct (Westmead)

Facilities and Amenities

Learn more about the Institute's research spaces and other facilities.

Floor Plans

View all of the buildings floor plans on each level.

Getting There

In the centre of scientific innovation, research and health developments. How do you get there?

Building Progress

See the latest developments for the Westmead Innovation Quarter (IQ) that will house MARCS Institute, THRI and TeACH.

Frequently Asked Questions

Questions and Answers for both professional staff, academic staff, students and visitors.